Bright Carlsberg Byen 1BR w/ Balcony & W/D, nr Istengade, by Blueground | Apartment in Copenhagen

1 Bedroom Apartment in Vesterbro, Copenhagen
Feel at home wherever you choose to live with Blueground. You’ll love this spacious Carlsberg Byen furnished one-bedroom apartment with its modern decor, fully equipped kitchen, and exquisite living room with great views. Ideally located, you’re close to all the best that Copenhagen has to offer! (ID #CPH24)
Designed with you in mind
Thoughtfully designed with bespoke finishes, modern furnishings, and a fully-equipped kitchen, you’ll enjoy that “I’m home” feeling with this Blueground apartment. Whether you’re lounging in your spacious living room streaming the latest and greatest entertainment on the smart TV or premium wireless speaker, or getting some well-earned rest on the superior quality mattress with luxury linens, you’ll fall in love with everything this Carlsberg Byen apartment has to offer. This apartment also offers in-apartment laundry.
Sleeping arrangements
Queen Bed, 63in/160cm
Amenities
Building amenities unique to this one-bedroom include an on-site:
- Dryer
- Elevator
- Washing machine
Arrival and ongoing support
The entire apartment is yours to enjoy! You’ll either be personally greeted by a Blueground team member or given self check-in instructions.
Throughout your stay, you’ll have access to our Client Experience team through the Blueground App. You can schedule additional cleanings, submit maintenance requests, and view our neighborhood recommendations with just a few taps.
We’ll share all details upon confirmation of your stay.
Ideally Located
Lovely Carlsberg Byen is a new neighborhood created between Frederiksberg and Vesterbro within Copenhagen's Old Town. This quickly developing area features contemporary apartment buildings and high rises mixed in with medieval buildings. There's a fantastic mix of cafes and restaurants, so you are sure to find something you like. Carlsberg Byen also has a variety of bars and pubs, not to mention the historic Carlsberg Brewery. Other highlights include Cisterns in Søndermarken, a vast underground reservoir that now hosts arts exhibitions and events, and the Hill House Museum, where you can explore a medieval building and enjoy a snack in the garden. The neighborhood is also home to Carlsberg St. Copenhagen University College's Campus Carlsberg. Carlsberg Byen has its own train station with S-Bahn service and is connected to the Metro's M3 line.
Other things to note
This Blueground apartment has flexible lease options, allowing you to book it for one month, a year, or more.
We take great pride in ensuring every photo displayed is shot in our own apartments with our actual furnishings. That said, we regularly refresh our decor and furniture arrangement, which may differ from what’s pictured.
A security deposit of DKK22740 is required at booking, which will be returned within 2-4 weeks after the check-out, minus any deductible damages.
This apartment has a residency requirement. Tenants are required to be registered in the address at the municipality for their full stay.
Rent is charged on a monthly basis and you have a 1-month termination notice.
Please be aware that all tenant bookings in Copenhagen are required by law to establish residency (""Bopælspligt""). Tenant(s) are required to register the stay at borger online portal. However, to register, a tenant needs to have a CPR number which can be obtained only if the tenant plans to stay in Denmark for a minimum of three (3) months. To obtain a CPR, a tenant needs to go in person to:
International House Copenhagen
Nyropsgade 1
1602 København V
within five (5) days of arrival in Copenhagen.
Please bring your passport and residence permit (non EU) and a copy of your rental contract/Guest Agreement.
Bright Carlsberg Byen 1BR w/ Balcony & W/D, nr Istengade, by Blueground is located in Vesterbro. Bright Carlsberg Byen 1BR w/ Balcony & W/D, nr Istengade, by Blueground provides accommodation, featuring Kitchen, Laundry, TV, among other amenities. This Apartment features Kitchen, Laundry, TV, to make your stay a comfortable one.
Bright Carlsberg Byen 1BR w/ Balcony & W/D, nr Istengade, by Blueground has 1 Bedroom , 1 Bathroom, and max occupancy of 2 people. The minimum rental for this property is 1 nights, but this can change depending on the season you plan on staying. Previous guests have given good rated it, and VRBO labeled it a top-rated Apartment because of the excellent services rendered by the owner or manager of this Apartment, and has consistently provided great experiences for their guests. Most families or guests that use it recommend it to their friends and some of them are repeat guests. Apartment has a friendly neighborhood, and the Vesterbro has interesting places to visit. If you want to learn more about the Apartment in Vesterbro, such as places to visit and things to do nearby, you can check below to learn more.
Amenities
Facility Overview
-
Heating
-
1 bathroom
-
Hair dryer
-
Towels provided
-
1 bedroom
-
Bed sheets provided
-
Living room
-
Cookware/dishes/utensils
-
Dishwasher
-
Microwave
-
Oven
-
Refrigerator
-
Washing machine and dryer
-
No pets allowed
-
Elevator
-
Smoke-free property
-
Stereo
-
TV
-
Sleeps 2
-
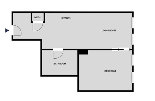
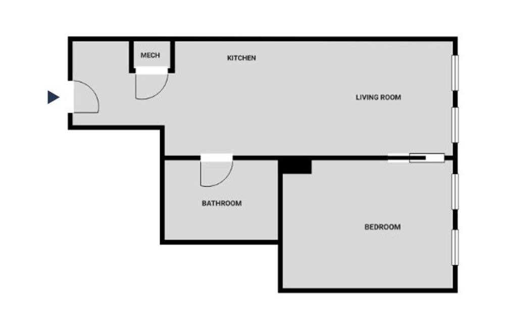
Unit size: 581 sq ft (54 sq m)
-
Housekeeping (on request)
-
Iron/ironing board
-
Internet access
Policies
Be prepared: check the latest covid-19 travel requirements and measures in place for this destination before you travel. extra-person charges may apply and vary depending on property policy government-issued photo identification and a credit card, debit card, or cash deposit may be required at check-in for incidental charges onsite parties or group events are strictly prohibited special requests are subject to availability upon check-in and may incur additional charges; special requests cannot be guaranteed this property is managed through our partner, vrbo. you will receive an email from vrbo with a link to a vrbo account, where you can change or cancel your reservation