Spacious Comfortable & Tranquil Restored Farmhouse | House in Saint-Thomas-de-Courceriers

10.0 (1 Review) |   Pet Friendly   3 Bedrooms  2 Bathrooms  6 Guests
Saint-Thomas-de-Courceriers House | Spacious Comfortable & Tranquil Restored Farmhouse

3 Bedroom House in Saint-Thomas-de-Courceriers

La Goupillère is a spacious, fully restored old farmhouse which stands in the grounds of what was once a large working farm.

The property is surrounded by arable land. There are no smelly animal facilities or commercial installations anywhere in the vicinity. This is not to say there are no animals around, of course there are but only in the nice sense.

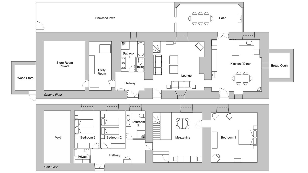
With living accommodation of 185 square metres (2,000 square feet) and with three double bedrooms and two bathrooms, each with a proper shower cubicle and one with a bath, the property is designed to accommodate up to six people in comfort.

La Goupillère is not a gîte in the traditional meaning of the term - it is a very well appointed detached country house and, although we live nearby and are therefore on hand should you need us, we are not on-site, so you can enjoy your privacy. The property is stand-alone and there are no other guests sharing any part of it.

As a self-catering house, you'll find everything you need for a perfect stay. The large kitchen is fully equipped, with direct access to the patio and BBQ outside.

There are three double bedrooms, two of which can be made up with a king size bed or two singles. The master bedroom is very large. Please note the “king size” beds are 200x160 cm, if separated they become two 200x80 cm singles..

There are 2 bathrooms. The first has a toilet and sink, a walk-in shower and a bath. The second has a toilet and sink and a walk-in shower.

Linen and towels are all included to make your stay more enjoyable.

The pool is a "splash pool", big enough and lovely for cooling off but not a "swimming pool". There are many excellent public swimming pools nearby plus swimming lakes with sandy beaches within easy reach.

House Rules:
- Check-in time is 4pm and check-out is 10am unless otherwise agreed before arrival.
- Smoking is not allowed.
- There is plenty of covered on-site parking at the property.
- Pets may be allowed at the property but only with prior approval at the time of booking. Please enquire.
- There is a small tourist tax of 1,20€ per guest per night 18 years or over. Unlike other OTAs, the price via Travelnest does not include this, they require you to to pay us direct in cash (Euros).

Spacious Comfortable & Tranquil Restored Farmhouse is located in Saint-Thomas-de-Courceriers. Spacious Comfortable & Tranquil Restored Farmhouse provides accommodation, featuring Barbecue/Outdoor Cooking, Child Friendly, Balcony/Terrace, among other amenities. This House features Barbecue/Outdoor Cooking, Child Friendly, Balcony/Terrace, to make your stay a comfortable one.

Spacious Comfortable & Tranquil Restored Farmhouse has 3 Bedrooms , 2 Bathrooms, and max occupancy of 6 people. The minimum rental for this property is 1 nights, but this can change depending on the season you plan on staying. Previous guests have given good rated it, and VRBO labeled it a top-rated House because of the excellent services rendered by the owner or manager of this House, and has consistently provided great experiences for their guests. Most families or guests that use it recommend it to their friends and some of them are repeat guests. House has a friendly neighborhood, and the Saint-Thomas-de-Courceriers has interesting places to visit. If you want to learn more about the House in Saint-Thomas-de-Courceriers, such as places to visit and things to do nearby, you can check below to learn more.

Show more
OneKey Logos

This Property is OneKey Eligible

Earn OneKeyCash for every dollar spent on eligible vacation rentals, villas, cottages, cabins, and more when you book on Vrbo.

JOIN TODAY

Amenities

Parking
Pet Friendly
TV
Balcony/Terrace
Security/Safety
Bedding/Linens
Wellness Facilities
Fireplace/Heating
Entertainment
Barbecue/Outdoor Cooking
Child Friendly
Internet
Kitchen
Laundry

Facility Overview

Air Conditioner
  • Heating
Bathrooms
  • Shower
  • Towels provided
  • Hair dryer
  • 1 bathroom
Bedroom
  • 3 bedrooms
  • Bed sheets provided
  • Fireplace
Kitchen
  • Dishwasher
  • Oven
  • Refrigerator
  • Stovetop
  • Microwave
  • Coffee/tea maker
  • Toaster
Laundry
  • Washing machine and dryer
Parking
  • Onsite parking
Pet Friendly
  • Pet friendly
Accessibility
  • Smoke-free property
Entertainment
  • TV
  • Stereo
General
  • Unit size: 1938 sq ft (180 sq m)
  • English
Guest Services
  • Highchair
  • Iron/ironing board
Internet
  • WiFi available
Outdoors
  • Garden
  • Barbecue grill
  • Patio
Security/Safety
  • Carbon monoxide detector installed (host has indicated there is a carbon monoxide detector on the property)
  • Smoke detector installed (host has indicated there is a smoke detector on the property)

Policies

Check-in
Check-in time starts at 4:00 pm minimum check-in age: 18
Check-out
Check-out before 10:00 am
Child Policy
Children are welcome.
Event Policy
No events allowed
Pet Policy
Pets allowed service animals are welcome, and are exempt from fees
Smoking Policy
Smoking is not permitted

Extra-person charges may apply and vary depending on property policy government-issued photo identification and a credit card, debit card, or cash deposit may be required at check-in for incidental charges host has indicated there is a carbon monoxide detector on the property host has indicated there is a smoke detector on the property onsite parties or group events are strictly prohibited special requests are subject to availability upon check-in and may incur additional charges; special requests cannot be guaranteed this property accepts cash this property is managed through our partner, vrbo. you will receive an email from vrbo with a link to a vrbo account, where you can change or cancel your reservation

Reviews

Stephen C.
Sep 12, 2022 02:37:05 AM
Review Score:   10
Summary: Great place to relax and chill out, great hosts who are very welcoming and informative. Highly recommend.
See All Reviews

FAQ's

Is this Saint-Thomas-de-Courceriers house pet-friendly for guests?

Yes, pets are allowed at this property. Check the guest reviews to learn what guests had to share.

Does the Saint-Thomas-de-Courceriers house have a swimming pool?

No, this Saint-Thomas-de-Courceriers house does not have a swimming pool. Check the Facility Overview section for details about the pool and other available facilities.

How much does it cost per night to stay in Saint-Thomas-de-Courceriers house?

Best-rates for the Saint-Thomas-de-Courceriers house starts from $168 per night with includes Parking, Pet Friendly, TV, Security/Safety, Bedding/Linens, Wellness Facilities, Barbecue/Outdoor Cooking, Child Friendly, Balcony/Terrace, Fireplace/Heating, Entertainment, Internet, Kitchen, Laundry with all other facilities. matches every traveler with their perfect accommodation, whether you are traveling with a group, friends, family, or pets.

Is Saint-Thomas-de-Courceriers house a family-friendly place to stay?

Based on the information we have received from the owner or our partner, this is considered to be a family-friendly property. Families have rated this house Good or guests have recommended them suitable for families. As reported by the owner or manager, the house has specified that children are welcome. Please see details about suitability for your family or inquire with the property to learn more.

Is the Saint-Thomas-de-Courceriers house wheelchair accessible or offer services for disabled guests?

Based on the information received from our partner, the Saint-Thomas-de-Courceriers house has not specified they are wheelchair accessible. Likewise, there is not an elevator specified as being available at the property. Specific accessibility details may be addressed in the property details section of this page.

What is the minimum night stay policy for the Saint-Thomas-de-Courceriers house?

Based on the information reported by the owner or manager, the Saint-Thomas-de-Courceriers house indicates 1 day stay policy at this house. Guests are cautioned that the minimum stay policy may differ based on seasonality or availability and may be at the discretion of the owner or manager.

What cancellation policy is in place for Saint-Thomas-de-Courceriers house?

Guests are cautioned that the cancellation policy may differ based on seasonality, availability, or current travel restrictions. Guests should also be aware that this policy may be subject to change and should be confirmed prior to booking. More details may be available on this page in the property description. However, early check-in or late check-out can sometimes be negotiated between the guest and the owner or the manager of this property.

Check House Availability
Nightly rates from:
USD168
You will be redirected to  
Hot Deal - It has been viewed 200 times today
Not the right fit? Check out our other properties in Saint-Thomas-de-Courceriers
Chambres d'hôtes au coeur de la Mayenne From US $95
         

|
9.5 (14 Reviews)
Bed & Breakfast
  • Parking
  • View
  • Balcony/Terrace
Chez Lili From US $35
         

9.4 (86 Reviews)
House
  • Air Conditioner
  • Parking
  • View
Charming Cottage Retreat with garden From US $117
         

|
9.3 (9 Reviews)
House
  • Parking
  • Pet Friendly
  • View
Chambres d'hôtes Le Bignon dans les Alpes Mancelles From US $75
         

9.2 (109 Reviews)
Bed & Breakfast
  • Parking
  • Designated Smoking Area
  • TV
Stunning home in Saint-Pierre-sur-Orth From US $153
         

9.4 (3 Reviews)
House
  • Parking
  • Pet Friendly
  • Balcony/Terrace
Fermette à la Campagne From US $143
         

8.0 (3 Reviews)
House
  • TV
  • Balcony/Terrace
  • Security/Safety
The stadium house From US $76
         

10.0 (1 Review)
House
  • Air Conditioner
  • Designated Smoking Area
  • Fireplace/Heating