Pet Friendly Spacious Luxe Corner House for Professionals - Left Side | House in Kingston

New |   Pet Friendly   2 Bedrooms  1 Bathroom  4 Guests
Kingston House | Pet Friendly Spacious Luxe Corner House for Professionals - Left Side

2 Bedroom House in Kingston

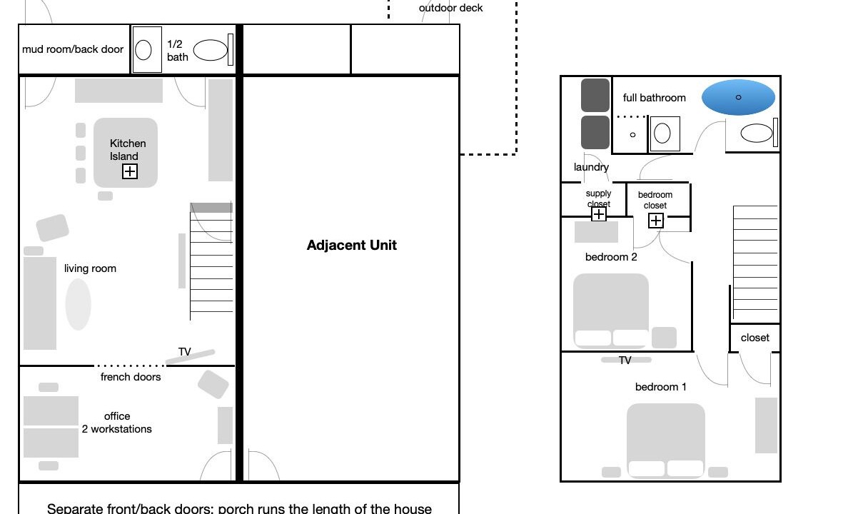
This duplex house in Kingston, Pennsylvania features 2 identically renovated 2-story units conveniently close to hospitals, corporations, and Wyoming Seminary Prep School. Both units are available to rent monthly to traveling professionals such as nurses, athletes, executives, and travelers needing monthly stays. We are pet friendly with an unfenced backyard and driveway parking. Easy access to expressway, restaurants, and shopping.
Very stylish throughout with large gourmet eat-in kitchen, 3 workstations, fast WiFi, deep soak bathtub, mini split ductless heat/AC in every, room darkening blinds and smart locks.
Downstairs features double workstations in spacious office with modern double French doors for privacy and a smart tv. Keep the doors open to walk into the living room with another smart tv, the open kitchen featuring the extra large center island stocked with everything you need to cook meals and have your morning espresso. The half bathroom is off the kitchen, as well as an enclosed porch and back door.
Upstairs you'll find both queen bedrooms with crisp white linens, ductless Heat/AC, a large bathroom with separate rain shower and deep soak roman tub, and a separate laundry room.

Pet Friendly Spacious Luxe Corner House for Professionals - Left Side is located in Kingston. Pet Friendly Spacious Luxe Corner House for Professionals - Left Side provides accommodation, featuring Parking, Pet Friendly, Balcony/Terrace, among other amenities. This House features Parking, Pet Friendly, Balcony/Terrace, to make your stay a comfortable one.

Pet Friendly Spacious Luxe Corner House for Professionals - Left Side has 2 Bedrooms , 1 Bathroom, and max occupancy of 4 people. The minimum rental for this property is 1 nights, but this can change depending on the season you plan on staying. Previous guests have given good rated it, and VRBO labeled it a top-rated House because of the excellent services rendered by the owner or manager of this House, and has consistently provided great experiences for their guests. Most families or guests that use it recommend it to their friends and some of them are repeat guests. House has a friendly neighborhood, and the Kingston has interesting places to visit. If you want to learn more about the House in Kingston, such as places to visit and things to do nearby, you can check below to learn more.

Show more
OneKey Logos

This Property is OneKey Eligible

Earn OneKeyCash for every dollar spent on eligible vacation rentals, villas, cottages, cabins, and more when you book on Vrbo.

JOIN TODAY

Amenities

Air Conditioner
Parking
Pet Friendly
TV
Balcony/Terrace
Security/Safety
Bedding/Linens
Wellness Facilities
Fireplace/Heating
Guest Services
Child Friendly
Internet
Kitchen
Laundry

Facility Overview

Air Conditioner
  • Air conditioning
  • Heating
Bathrooms
  • Shampoo
  • Towels provided
  • Bathtub or shower
  • Hair dryer
  • 1+ bathrooms
  • Soap
  • Toilet paper
Bedroom
  • Bed sheets provided
  • 2 bedrooms
Kitchen
  • Microwave
  • Electric kettle
  • Paper towels
  • Stovetop
  • Refrigerator
  • Kitchen island
  • Oven
  • Dishwasher
  • Toaster
Laundry
  • Laundry facilities
  • Washing machine and dryer
Parking
  • Onsite parking
Pet Friendly
  • Pet friendly
  • 2 total (up to 50 lbs per pet)
  • Welcoming dogs only
Accessibility
  • Smooth flooring in public areas
  • Area rugs in public areas
  • Smoke-free property
  • If you have requests for specific accessibility needs, please contact the property using the information on the reservation confirmation received after booking.
  • No elevators
  • 5 stairs to reach property
Activities
  • Hiking/biking trails nearby
  • Hiking nearby
  • Fitness facilities nearby
Entertainment
  • Smart TV
General
  • Double-glazed windows
  • At least 80% lighting from LEDs
  • Recycling
  • Unit size: 1600 sq ft (149 sq m)
  • English
  • Near a hospital
  • Desk
  • Desk chair
Guest Services
  • Housekeeping (on request)
  • Iron/ironing board
Internet
  • Free WiFi, with speed of 250+ Mbps (good for 3–5 people or up to 10 devices)
Outdoors
  • Garden
Security/Safety
  • Carbon monoxide detector installed (host has indicated there is a carbon monoxide detector on the property)
  • Fire extinguisher
  • Smoke detector installed (host has indicated there is a smoke detector on the property)
  • First aid kit
  • Deadbolt lock
Skiing
  • Close to skiing

Policies

Check-in
Check-in time starts at 3:00 pm minimum check-in age: 25
Check-out
Check-out before 11:00 am
Child Policy
Children are welcome. note from host: children are included in the max guest count of 4.
Event Policy
No events allowed
Pet Policy
2 total (up to 50 lbs per pet) note from host: over 50lbs or multiple dogs require extra pet fee. pets allowed service animals are welcome, and are exempt from fees welcoming dogs only
Smoking Policy
Smoking is not permitted

Extra-person charges may apply and vary depending on property policy government-issued photo identification and a credit card, debit card, or cash deposit may be required at check-in for incidental charges host has indicated there is a carbon monoxide detector on the property host has indicated there is a smoke detector on the property long-term renters welcome onsite parties or group events are strictly prohibited safety features at this property include a fire extinguisher, a first aid kit, and a deadbolt lock special requests are subject to availability upon check-in and may incur additional charges; special requests cannot be guaranteed this property is managed through our partner, vrbo. you will receive an email from vrbo with a link to a vrbo account, where you can change or cancel your reservation

FAQ's

Is this Kingston house pet-friendly for guests?

Yes, pets are allowed at this property. Check the guest reviews to learn what guests had to share.

Does the Kingston house have a swimming pool?

No, this Kingston house does not have a swimming pool. Check the Facility Overview section for details about the pool and other available facilities.

How much does it cost per night to stay in Kingston house?

Best-rates for the Kingston house starts from $86 per night with includes Parking, Pet Friendly, Balcony/Terrace, Wellness Facilities, Guest Services, Child Friendly, Laundry, Air Conditioner, TV, Security/Safety, Bedding/Linens, Fireplace/Heating, Internet, Kitchen with all other facilities. matches every traveler with their perfect accommodation, whether you are traveling with a group, friends, family, or pets.

Is Kingston house a family-friendly place to stay?

Based on the information we have received from the owner or our partner, this is considered to be a family-friendly property. Families have rated this house Good or guests have recommended them suitable for families. As reported by the owner or manager, the house has specified that children are welcome. Please see details about suitability for your family or inquire with the property to learn more.

Is the Kingston house wheelchair accessible or offer services for disabled guests?

Based on the information received from our partner, the Kingston house has not specified they are wheelchair accessible. Likewise, there is not an elevator specified as being available at the property. Specific accessibility details may be addressed in the property details section of this page.

What is the minimum night stay policy for the Kingston house?

Based on the information reported by the owner or manager, the Kingston house indicates 1 day stay policy at this house. Guests are cautioned that the minimum stay policy may differ based on seasonality or availability and may be at the discretion of the owner or manager.

What cancellation policy is in place for Kingston house?

Guests are cautioned that the cancellation policy may differ based on seasonality, availability, or current travel restrictions. Guests should also be aware that this policy may be subject to change and should be confirmed prior to booking. More details may be available on this page in the property description. However, early check-in or late check-out can sometimes be negotiated between the guest and the owner or the manager of this property.

Check House Availability
Nightly rates from:
USD86
You will be redirected to  
Hot Deal - It has been viewed 4 times today
Not the right fit? Check out our other properties in Kingston
Relaxing Spot in Wilkes-Barre with Private Parking From US $94
         

Leave Worries Behind From US $217
         

10.0 (1 Review)
Apartment
  • Air Conditioner
  • Balcony/Terrace
  • Security/Safety
The Stegmaier Guest House From US $359
         

|
10.0 (3 Reviews)
Bed & Breakfast
  • Air Conditioner
  • Parking
  • Security/Safety
"Serene Escape: Leave Worries Behind"n From US $153
         

9.8 (6 Reviews)
House
  • Air Conditioner
  • Parking
  • TV
Serene Escape Leave Worries Behind From US $176
         

9.5 (9 Reviews)
Apartment
  • Air Conditioner
  • Security/Safety
  • Guest Services
Apartment Movie Theater From US $199
         

9.6 (8 Reviews)
House
  • Air Conditioner
  • Parking
  • Designated Smoking Area
The Stegmaier Mansion Guest House From US $449
         

9.0 (1 Review)
Bed & Breakfast
  • Air Conditioner
  • Parking
  • Balcony/Terrace
Cabin Experience near all From US $188
         

9.0 (13 Reviews)
House
  • Air Conditioner
  • Parking
  • TV
Labelle From US $144
         

New
Apartment
  • Parking
  • Security/Safety
  • Child Friendly
Leave Worries Behind From US $298
         

9.0 (2 Reviews)
Apartment
  • Air Conditioner
  • Security/Safety
  • Bedding/Linens
Serendipity Corner Guesthouse From US $245
         

8.0 (1 Review)
House
  • Air Conditioner
  • Parking
  • Designated Smoking Area
Bungalow Vacations From US $181
         

8.0 (1 Review)
House
  • Air Conditioner
  • Parking
  • TV
Cozy bungalow From US $219
         

New
House
  • Parking
  • TV
  • Balcony/Terrace
Hotel suite with AC, WiFi, fitness room in welcoming Wilkes-Barre From US $120
         

5.0 (2 Reviews)
Apartment
  • Air Conditioner
  • Pet Friendly
  • Security/Safety
Cozy hotel in charming Wilkes-Barre! From US $232
         

New
Hotel
  • Air Conditioner
  • Security/Safety
  • Bedding/Linens
In Unit W&D Free Parking Fast Wifi 5 Min Downtown From US $223
         

10.0 (3 Reviews)
Apartment
  • Air Conditioner
  • Parking
  • TV
Beautiful Loft Apartment From US $252
         

9.0 (2 Reviews)
Apartment
  • Air Conditioner
  • Designated Smoking Area
  • TV
New ~ Elegant Apt in Downtown WB From US $149
         

9.0 (2 Reviews)
Apartment
  • Air Conditioner
  • Pet Friendly
  • Security/Safety