Panorama Place on Jones Beach - multi level beachfront | House in Kiama Downs

7.8 (17 Reviews) |   4 Bedrooms  3 Bathrooms  8 Guests
Kiama Downs House | Panorama Place on Jones Beach - multi level beachfront

4 Bedroom House in Kiama Downs

Throw on your swimmers, grab your towel and sunscreen and walk straight from the back door to the golden sands of Jones Beach. This absolute beach front home has space for the whole family to have a fantastic beach break away.
A short 10 minute walk south will land you at the lovely Boneyard. Boneyard is a calm flat pebbly bay, to enjoy the salt water without waves. The bay is great for the kids, for snorkelling or a picnic on the flat green grassy area just before the pebbles down to the waters edge.
If you head North just a few houses down there is a childrens playground and an outdoor basketball court a little further should you feel like some outdoor activities in the sun.
Continuing in that direction a further 10 minute walk will lead you to the stunning Minnamurra River and Mystics Beach. The river and Mystics beach are personal favourite local destinations of ours. Again, an option of waves or no waves (the tide can be strong at times for those who are not strong swimmers should you choose to swim across to Mystics beach) Stand up paddle boarding, swimming, surfing and fishing are all popular activities here.
A great Cafe across the road too! As well as a breathtaking headland walk. Book Panorama Place now for your next holiday with the whole family!
The Property Features
• Absolute beachfront and adjoining reserve
• Accommodation for up to 8
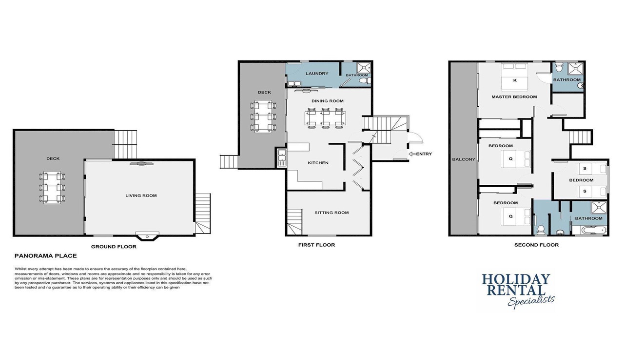
• 4 bedrooms 3 with balcony access and ocean views
• 3 bathrooms
• Multiple living areas family sitting room, lounge (please note fireplace not in use)
• Flat-screen TV
• WiFi, laptop friendly
• Well equipped kitchen with dishwasher. Numerous outdoor areas consisting of large sunny decks perfect for entertaining, relaxing or firing up the BBQ
• Park and swing equipment nearby coastal walks to Cathedral Rocks
• Easy walk to small shopping centre with well-stocked IGA, IGA bottle shop, wonderful cafe/bakery, great takeaway fish/chip/burger joint, trendy coffee shop and a chemist/gift shop.
Please note that all internal stairs are not gated and not safe for children.
Bedroom Configuration
• Bedroom 1: king with ensuite
• Bedroom 2: queen
• Bedroom 3: queen
• Bedroom 4: singles x 2
Distances to
• 50m to beach
• 400m to Kiama Downs Surf Club
• 650m to Cathedral Rocks
• 900m to Kiama Golf Club
• 1km to Boneyard Beach
• 1km to Bakery, Shops and Caf
• 2km to Minnamurra Lookout
• 2km to Minnamurra Point
• 2km to Bombo Beach
• 5km to Kiama Blowhole and Lighthouse
• 17km to Jamberoo Action Park
• 90 minutes to Sydney
• 2 Hours to Canberra
Linen
All linen (sheets and bath towels) is supplied for your stay and included in the tariff. For the comfort of our guests, we do not triple-sheet. All beds have a fitted sheet, a flat sheet and a quilt with a full cover. BYO beach towels.
Property Specific Notes
Pets are NOT welcome at this property.
Wi-Fi is offered as a complimentary extra. As there is no charge, issues will be dealt with asap but cannot be guaranteed.
Phone reception can be unreliable for some networks due to beach location.
This property will consider bookings for groups of young people and/or Schoolies, however, these bookings can only be made by application. Please message us; a comprehensive guest registration form must be completed prior to confirmation and AUD 2000 cash bond is payable. Other conditions apply.
Notes
Code of Conduct: Payment for the booking warrants you and all guests staying will abide by the Code of Conduct for Short Term Rental Accommodation which can be viewed under the Guest Information tab on our website or a link which will be sent to you in your booking confirmation email.
Noise at Properties: NSW Planning has passed laws that affect guests. The Code of Conduct for holiday renting can be found on our website under the Guest Information tab. In Section 2.5.2 of the STR Code of Conduct, guests have an obligation to ensure the peace and comfort of neighbours and other occupants of the premises (if strata) near holiday rental properties. This means guests have to be very mindful of noise made in or outside the property that can disrupt neighbours at any time of the day. If you or any other guest receives a warning regarding excess noise or excess guests, you may be asked to leave the property immediately with no refund of monies. Noise audible outside the property is prohibited.
Privacy: This property is a holiday rental, it is not a principal place of residence and there are no shared rooms. Enjoy your time in comfort and privacy.
Terms and Conditions: Detailed T&Cs apply for this property and payment warrants your agreement and that of all other guests staying at the property with you. Please share the T&Cs with your other guests.
Check-in and -out Times: During the busy months of December and January, the check-in time is 4 pm to facilitate peak back-to-back changeovers. Our standard check-in time is 3 pm and check-out time is 10 am. We offer a complimentary early check-in or late check-out time as a gesture of goodwill where booking and housekeeping schedules allow. Note that due to demand and housekeeping pressures, no early check-ins or late check-outs will be granted during the months of December and January. The safest way to secure an early check-in or later check-out is to book the property for an extra night. Contact us for a special rate for this extra night. All Sunday late check outs must be requested and approved prior to 5 pm on the Friday evening prior. All complimentary early check-ins or late check-outs must be confirmed in writing so that our housekeeping team are informed accordingly.
Guest Registration: Guest registration is mandatory for all bookings and replaces the need for a cash bond for short term bookings (up to 20 nights). It is essential for fraud prevention, damage claims, safety, and emergency purposes. The process varies depending on the online travel agent used. Direct bookings require the booker to upload a copy of their driver’s licence and credit card through our encrypted online process.
Additional Guests: The guest limits apply at all times during the booking. Any extra guests (this includes day visitors) above those that have been booked and paid for must be approved in writing prior to the stay. Only the guests staying at the property are permitted to be present. If you wish to have visitors in addition to booked guests, you must advise us in writing prior to your stay and ensure you receive written permission. This is not possible at all properties.
No Extras: This property is approved for accommodation only. No mattresses, tents, caravans or more cars than the property accommodates are allowed. Under no circumstances are the following activities permitted at any of our properties: motorbikes, dirt bikes, quad bikes, use of firearms or air rifles, fireworks.
EV Charging: For safety reasons and to comply with insurance requirements, guests are prohibited from charging electric vehicles at any property that does not have a dedicated EV charging station. Charging electric vehicles without proper infrastructure poses a fire hazard, and in the unfortunate event of an incident, insurance cover may be compromised, and the guest held liable. If in doubt, ask our team for the closest EV charging station.
Long Stay Discounts: Out of peak season stays of a week or more may qualify for a discount, please send us a message.
Property Information: Information during your stay can be found in the Guest Information Folder or by calling our office 24/7.
Security Deposit: For most bookings, completion of our registration process and a valid credit card with a $1000 available limit is sufficient for the security deposit. For medium-term bookings (21-40 nights) and long-term bookings (41-90 nights), a non-negotiable cash security deposit is required. This deposit, held in our Trust Account, is refunded after the departure inspection, with any damage or loss deducted. The minimum cash deposit is $2000, with higher amounts for larger or more expensive properties, or at the owner’s/agent’s discretion.
Peace of Mind: For your added security, this property is managed by a Licensed Real Estate Agent. We will never request payments be made to an overseas bank account and your money is held safely in our Trust Account until after your departure.
List with Us: If we had more properties in our management portfolio, we could easily get them booked. Demand is high and supply just can’t keep up. Send us a message or call us if you would like to know more about the packages we offer for short term rental management.

This 4 Bedrooms House provides accommodation with Laundry, Parking, TV, for your convenience. This House features many amenities for guests who want to stay for a few days, a weekend or probably a longer vacation with family, friends or group. The rental House has 4 Bedrooms and 3 Bathrooms to make you feel right at home.

Check to see if this House has the amenities you need and a location that makes this a great choice to stay in Kiama Downs. Enjoy your stay in Kiama Downs at this House.

Show more
OneKey Logos

This Property is OneKey Eligible

Earn OneKeyCash for every dollar spent on eligible vacation rentals, villas, cottages, cabins, and more when you book on Vrbo.

JOIN TODAY

Amenities

Parking
TV
Balcony/Terrace
Security/Safety
Bedding/Linens
Wellness Facilities
Barbecue/Outdoor Cooking
Child Friendly
Internet
Kitchen
Laundry

Facility Overview

Bathrooms
  • Towels provided
  • Hair dryer
  • 3 bathrooms
  • Shower
Bedroom
  • Bed sheets provided
  • 4 bedrooms
Kitchen
  • Stovetop
  • Dishwasher
  • Refrigerator
  • Microwave
  • Oven
  • Cookware/dishes/utensils
Laundry
  • Laundry facilities
  • Washing machine
Parking
  • Onsite parking
Pet Friendly
  • No pets allowed
Accessibility
  • Smoke-free property
Activities
  • Surfing/body boarding nearby
  • Swimming nearby
  • Fishing nearby
  • Power boating nearby
Entertainment
  • TV
General
  • English
Guest Services
  • Iron/ironing board
Internet
  • WiFi available
Outdoors
  • Barbecue grill
  • Patio
Security/Safety
  • Smoke detector installed (host has indicated there is a smoke detector on the property)
  • Carbon monoxide detector not reported (host has not indicated whether there is a carbon monoxide detector on the property; consider bringing a portable detector)

Policies

Check-in
Check-in time starts at 3:00 pm contactless check-in available
Check-out
Check-out before 10:00 am
Child Policy
Children are welcome.
Event Policy
No events allowed
Pet Policy
Pets not allowed
Smoking Policy
Smoking is not permitted

Extra-person charges may apply and vary depending on property policy government-issued photo identification and a credit card, debit card, or cash deposit may be required at check-in for incidental charges host has indicated there is a smoke detector on the property host has not indicated whether there is a carbon monoxide detector on the property; consider bringing a portable detector with you on the trip onsite parties or group events are strictly prohibited property registration number 2533,pid-stra-24286 special requests are subject to availability upon check-in and may incur additional charges; special requests cannot be guaranteed this property is managed through our partner, vrbo. you will receive an email from vrbo with a link to a vrbo account, where you can change or cancel your reservation

License number: 2533,PID-STRA-24286

Reviews

Shane M.
May 19, 2025 05:31:31 AM
Review Score:   8
Summary: Beautiful property, only steps away from the beach and a playground for young kids. The only negative feedback I have is that the (massive) property only has 1 (tiny) 32 inch non-smart tv that was underwhelming, especially as we wanted to watch some of the sport on over the weekend. There is also lots of extra space where a pool table or small entertainment area would be very beneficial for any visitors.
See All Reviews

FAQ's

Is this Kiama Downs house pet-friendly for guests?

No, pets are not allowed at this property. Check the guest reviews to learn what guests had to share.

Does the Kiama Downs house have a swimming pool?

No, this Kiama Downs house does not have a swimming pool. Check the Facility Overview section for details about the pool and other available facilities.

How much does it cost per night to stay in Kiama Downs house?

Best-rates for the Kiama Downs house starts from $390 per night with includes Security/Safety, Barbecue/Outdoor Cooking, Internet, Bedding/Linens, Wellness Facilities, Child Friendly, Kitchen, Laundry, Parking, TV, Balcony/Terrace with all other facilities. matches every traveler with their perfect accommodation, whether you are traveling with a group, friends, family, or pets.

Is Kiama Downs house a family-friendly place to stay?

Based on the information we have received from the owner or our partner, this is considered to be a family-friendly property. Families have rated this house Good or guests have recommended them suitable for families. As reported by the owner or manager, the house has specified that children are welcome. Please see details about suitability for your family or inquire with the property to learn more.

Is the Kiama Downs house wheelchair accessible or offer services for disabled guests?

Based on the information received from our partner, the Kiama Downs house has not specified they are wheelchair accessible. Likewise, there is not an elevator specified as being available at the property. Specific accessibility details may be addressed in the property details section of this page.

What is the minimum night stay policy for the Kiama Downs house?

Based on the information reported by the owner or manager, the Kiama Downs house indicates 1 day stay policy at this house. Guests are cautioned that the minimum stay policy may differ based on seasonality or availability and may be at the discretion of the owner or manager.

What cancellation policy is in place for Kiama Downs house?

Guests are cautioned that the cancellation policy may differ based on seasonality, availability, or current travel restrictions. Guests should also be aware that this policy may be subject to change and should be confirmed prior to booking. More details may be available on this page in the property description. However, early check-in or late check-out can sometimes be negotiated between the guest and the owner or the manager of this property.

Check House Availability
Nightly rates from:
USD390
You will be redirected to  
Hot Deal - It has been viewed 23 times today
Not the right fit? Check out our other properties in Kiama Downs
Beachy Keen From US $327
         

9.2 (60 Reviews)
House
  • Air Conditioner
  • Parking
  • TV
Panorama Place on Jones Beach From US $466
         

10.0 (1 Review)
House
  • Parking
  • View
  • Ocean View
Beach House on Johnson From US $458
         

10.0 (1 Review)
House
  • Air Conditioner
  • Parking
  • View
Beachfront Paradise - Jones Beach From US $731
         

9.8 (4 Reviews)
House
  • Air Conditioner
  • Parking
  • View
Aqua - views over Jones Beach From US $705
         

9.0 (51 Reviews)
House
  • Parking
  • Pet Friendly
  • TV
Kiama Downs Beach House From US $413
         

9.5 (2 Reviews)
House
  • Balcony/Terrace
  • Security/Safety
  • Sports/Activities
Beach House on Johnson From US $487
         

10.0 (1 Review)
House
  • Air Conditioner
  • Parking
  • TV
Dellwood – absolute beachfront on Jones Beach From US $343
         

Adelong - golf and beach lover’s dream From US $443
         

8.6 (4 Reviews)
House
  • Air Conditioner
  • Parking
  • Pet Friendly
Kiarama - ocean views From US $966
         

8.0 (1 Review)
House
  • Air Conditioner
  • Parking
  • Pool
Southbeach - Direct Beach Access to Jones Beach From US $1,550
         

4.0 (3 Reviews)
House
  • Air Conditioner
  • Parking
  • Pet Friendly
Kiama Downs Escape - Reserve View From US $181