Country Vacation Cottages | House in Aaronsburg

8.9 (8 Reviews) |   5 Bedrooms  2 Bathrooms  24 Guests
Tylersville House | Country Vacation Cottages

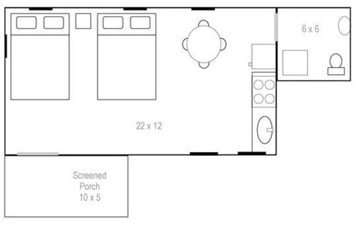
5 Bedroom House in Tylersville, Aaronsburg

Country Vacation Cottages has mountain views, free WiFi and free private parking, set in Aaronsburg, 43 km from Penn State University. Fitted with a patio, the units offer air conditioning and feature a flat-screen TV and a private bathroom with shower and free toiletries. A fridge, a microwave and toaster are also offered in the kitchen, as well as a coffee machine. The country house offers a barbecue. If you would like to discover the area, hiking, skiing and fishing are possible in the surroundings. Beaver Stadium is 40 km from Country Vacation Cottages, while Palmer Museum of Art is 42 km from the property. The nearest airport is University Park Airport, 41 km from the accommodation.

Country Vacation Cottages is located in Aaronsburg.

This 5 Bedrooms House is suitable for tourists and travelers. It has several amenities that would guarantee your comfort. These amenities include: Designated Smoking Area, Balcony/Terrace, Child Friendly, and several others. This is a good star rated property and has over 8 reviews with the average score of 8.9 . Coming to Aaronsburg and needing a place to stay? Be it for work or for leisure, consider staying at this House for your next visit, you will surely love it.

You can check the reviews and description of this 5 Bedrooms House if you want to learn more about this place in Aaronsburg. These details are authentic, as they are provided by our partner, booking.com.

This Country Vacation Cottages in Aaronsburg is well equipped and has all facilities that have been listed below. Please note that these details were shared to us by booking.com for the listed “Country Vacation Cottages”. We solely rely on their shared details and are regarded as “accurate”. If you have any concerns about the information or accuracy describing this House, please let us know.

Show more

Amenities

Air Conditioner
Parking
Designated Smoking Area
Balcony/Terrace
Child Friendly
Internet
Kitchen

Policies

Pet Policy
Pets are not allowed

Reviews

Value for money:
8.93
Location:
7.5
Staff:
9.69
Facilities:
8.93
Comfort:
8.93
Cleanliness:
10

FAQ's

Is this Country Vacation Cottages pet-friendly for guests?

No, pets are not allowed at this property. Check the guest reviews to learn what guests had to share.

What time is check-in & check-out at Country Vacation Cottages?

Check-in time for Country Vacation Cottages starts counting from 4:00 PM and check-out is until 10:00 AM. However, early check-in or late check-out can sometimes be negotiated between the guest and the owner or the manager of this property.

Does the Country Vacation Cottages have a swimming pool?

No, this Country Vacation Cottages does not have a swimming pool. Check the Facility Overview section for details about the pool and other available facilities.

How much does it cost per night to stay in Country Vacation Cottages?

Best-rates for the Country Vacation Cottages starts from $79 per night with includes Parking, Designated Smoking Area, Balcony/Terrace, Child Friendly, Internet, Kitchen, Air Conditioner with all other facilities. matches every traveler with their perfect accommodation, whether you are traveling with a group, friends, family, or pets.

Is Country Vacation Cottages a family-friendly place to stay?

Based on the information we have received from the owner or our partner, this is considered to be a family-friendly property. Families have rated this house Good or guests have recommended them suitable for families. As reported by the owner or manager, the house has specified that children are welcome. Please see details about suitability for your family or inquire with the property to learn more.

Is the Country Vacation Cottages wheelchair accessible or offer services for disabled guests?

Based on the information received from our partner, the Country Vacation Cottages has not specified they are wheelchair accessible. Likewise, there is not an elevator specified as being available at the property. Specific accessibility details may be addressed in the property details section of this page.

What is the minimum night stay policy for the Country Vacation Cottages?

Based on the information reported by the owner or manager, the Country Vacation Cottages indicates 1 day stay policy at this house. Guests are cautioned that the minimum stay policy may differ based on seasonality or availability and may be at the discretion of the owner or manager.

What cancellation policy is in place for Country Vacation Cottages?

Guests are cautioned that the cancellation policy may differ based on seasonality, availability, or current travel restrictions. Guests should also be aware that this policy may be subject to change and should be confirmed prior to booking. More details may be available on this page in the property description. However, early check-in or late check-out can sometimes be negotiated between the guest and the owner or the manager of this property.

Check House Availability
Nightly rates from:
USD79
You will be redirected to  
Hot Deal - It has been viewed 9 times today
Not the right fit? Check out our other properties in Tylersville
Country Vacation Cottages From US $79
         

8.9 (8 Reviews)
House
  • Air Conditioner
  • Parking
  • Designated Smoking Area
Nature Inn At Bald Eagle From US $156
         

|
9.8 (153 Reviews)
Hotel
  • Air Conditioner
  • Parking
  • Pool
Lock Haven Home with Fire Pit - Walk to Main St From US $153
         

10.0 (1 Review)
House
  • Parking
  • Wheelchair Accessible
  • Child Friendly
Fisher Mountain Retreat From US $755
         

|
10.0 (1 Review)
House
  • Parking
  • Security/Safety
  • Sports/Activities
Lakewoods Cottage From US $276
         

10.0 (38 Reviews)
Cottage
  • Air Conditioner
  • Parking
  • TV
Hike, Fish and Unwind Home with Fire Pit in Woodward! From US $250
         

|
10.0 (1 Review)
House
  • Parking
  • Accessibility
  • Security/Safety
Charming re-imagined bank barn cabin. From US $292
         

10.0 (26 Reviews)
Cabin
  • Air Conditioner
  • Parking
  • TV
Rustic Pines Retreat | Fire Pit, Covered Porch + More! From US $217
         

10.0 (19 Reviews)
Cabin
  • Air Conditioner
  • Parking
  • Pet Friendly
Country Estate With Pickleball Court From US $776
         

10.0 (11 Reviews)
House
  • Security/Safety
  • Child Friendly
THIS OLD HOUSE near PSU and LHU and Sayers Lake From US $270
         

10.0 (11 Reviews)
House
  • Air Conditioner
  • Parking
  • Pet Friendly
Meadow Sweet Cottagen From US $126
         

10.0 (11 Reviews)
Cottage
  • Air Conditioner
  • Parking
  • Security/Safety
15 Mi to Penn State: Hideaway w/Fire Pit! From US $244
         

10.0 (10 Reviews)
House
  • Air Conditioner
  • Parking
  • TV
Millheim Mallard Place From US $235
         

10.0 (10 Reviews)
House
  • Air Conditioner
  • Parking
  • TV
Spacious + Rustic Cabin Near Penns Creek From US $327
         

10.0 (7 Reviews)
Cabin
  • Air Conditioner
  • Parking
  • Pet Friendly
Amish Country Townhome: Near Hiking & Fly Fishing! From US $127
         

3 Mi to Penn's Creek Access: Hideaway w/Grill! From US $279
         

10.0 (2 Reviews)
House
  • Air Conditioner
  • Parking
  • Pet Friendly
Seven Mtn Vista FirePit Hammock Deck Private From US $199
         

10.0 (1 Review)
Cabin
  • Air Conditioner
  • Parking
  • Pet Friendly