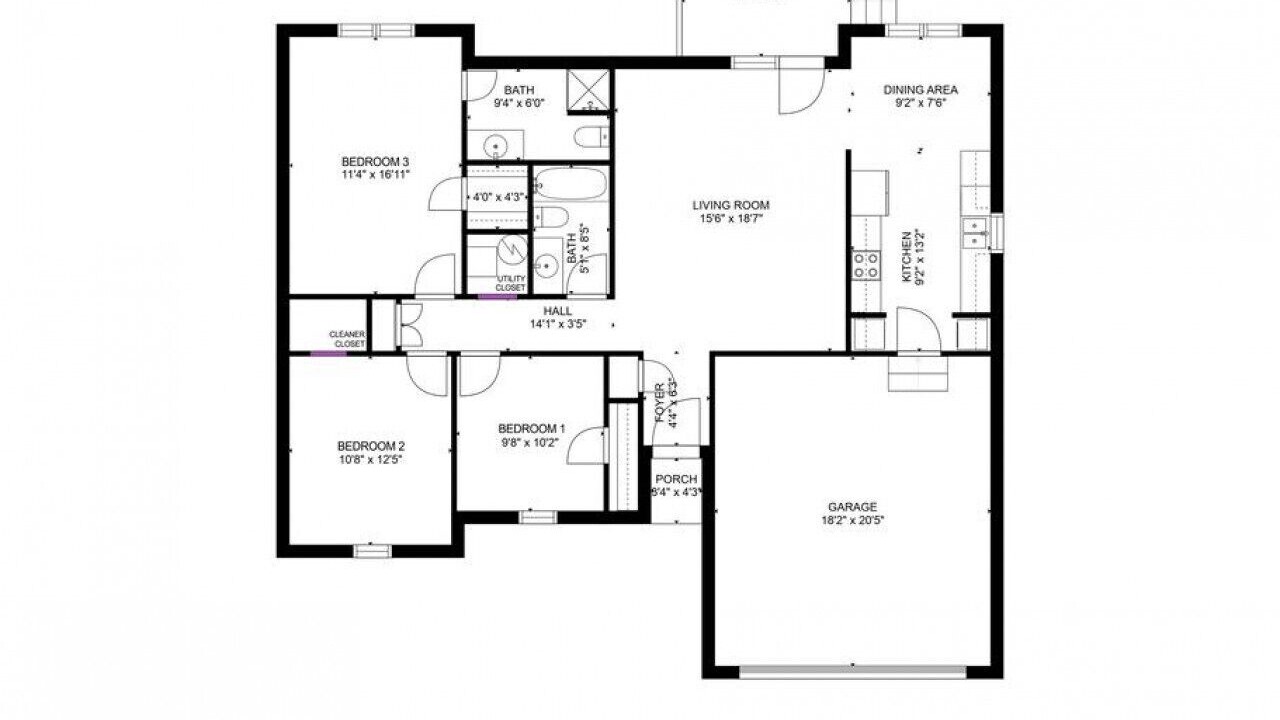
2805 N Summit Ave · Relax at the Summit - 3bd, 2b | House in Springfield

9.8 (78 Reviews) |   3 Bedrooms  2 Bathrooms  8 Guests
Doling House | 2805 N Summit Ave · Relax at the Summit - 3bd, 2b

3 Bedroom House in Doling, Springfield

Welcome to your perfect home away from home! Designed for comfort, connection, and fun, our spacious retreat offers everything you need to relax and recharge.
Unwind together on the oversized sectional—ideal for movie nights or catching up after a full day. For a cinematic experience, enjoy our stunning 86” 4K QLED TV with ultra contrast and immersive 5.1 surround sound.
Every room is crafted for comfort, with cozy Queen beds, fresh linens, and smart features throughout. Use Alexa to play ad-free Spotify, adjust lighting, or fine-tune the temperature—all with your voice.
Cook like you never left home in our fully stocked kitchen, ready for your favorite meals or snacks. Whether you're here for a short visit or a longer stay, you'll love the convenience and warmth of our space.
Located just south of I-44, you're minutes from Springfield’s top spots, restaurants, and attractions—making it the ideal base for your Ozarks adventure.
That disclaimer language:
1. Please keep children from walking/standing/jumping on any of the furniture.
2. Having parties forfeits the reservation, with no refund. **Strickly enforced
3. Unregistered (ESA & Service Animals need to be registered please) pets forfeits reservation, with no refund. $30 added. If incident isn't immediately caught there will be a daily minimum fine of $30.
4. No loud music or noise after 10 pm.
5. We can only accept bookings from completed account profiles (registered phone number and government-issued ID attached to their account).
6. There is a $50 late check-out fee.
7. Lost or broken item costs will be added to booking fee.
8. If broken house rules cause subsequent guest/s to cancel or require refund/s – these losses will be charged to previously cited guest.
9. Registered guest counts need to be accurate. For every unregistered guest, we hold the right to add an additional $10 fee per extra person, per night.
10. There is a $200 smoking fine for each day of the infraction and/or stay (smoking further away to help air out oneself is acceptable).
11. Due to regular misrepresentations and broken house rules, we no longer accept local bookings from guests with negative-ratings or lack of history.
12. Guests take full responsibility for loss, injury, or damages that occur on premises and it's facilities.
13. No shoes on carpet please

2805 N Summit Ave · Relax at the Summit - 3bd, 2b is located in Doling. 2805 N Summit Ave · Relax at the Summit - 3bd, 2b provides accommodation, featuring Air Conditioner, Parking, TV, among other amenities. This House features Air Conditioner, Parking, TV, to make your stay a comfortable one.

2805 N Summit Ave · Relax at the Summit - 3bd, 2b has 3 Bedrooms , 2 Bathrooms, and max occupancy of 8 people. The minimum rental for this property is 1 nights, but this can change depending on the season you plan on staying. Previous guests have given good rated it, and VRBO labeled it a top-rated House because of the excellent services rendered by the owner or manager of this House, and has consistently provided great experiences for their guests. Most families or guests that use it recommend it to their friends and some of them are repeat guests. House has a friendly neighborhood, and the Doling has interesting places to visit. If you want to learn more about the House in Doling, such as places to visit and things to do nearby, you can check below to learn more.

Show more
OneKey Logos

This Property is OneKey Eligible

Earn OneKeyCash for every dollar spent on eligible vacation rentals, villas, cottages, cabins, and more when you book on Vrbo.

JOIN TODAY

Amenities

Air Conditioner
Parking
TV
Balcony/Terrace
Security/Safety
Sports/Activities
Bedding/Linens
Wellness Facilities
Fireplace/Heating
Guest Services
Entertainment
Child Friendly
Internet
Kitchen
Laundry

Policies

Check-in
Check-in time starts at 4:00 pm contactless check-in available minimum check-in age: 18
Check-out
Check-out before 11:00 am
Child Policy
Children are welcome.
Pet Policy
Pets not allowed

Extra-person charges may apply and vary depending on property policy government-issued photo identification and a credit card, debit card, or cash deposit may be required at check-in for incidental charges host has indicated there is a carbon monoxide detector on the property host has indicated there is a smoke detector on the property onsite parties or group events are strictly prohibited safety features at this property include a fire extinguisher, a first aid kit, and a deadbolt lock special requests are subject to availability upon check-in and may incur additional charges; special requests cannot be guaranteed this property is managed through our partner, vrbo. you will receive an email from vrbo with a link to a vrbo account, where you can change or cancel your reservation

Reviews

Aliris S.
Sep 30, 2025 02:58:55 AM
Review Score:   10
Summary: It was amazing! What a beautiful home & definitely amazing with communication
See All Reviews

FAQ's

Is this Doling house pet-friendly for guests?

No, pets are not allowed at this property. Check the guest reviews to learn what guests had to share.

Does the Doling house have a swimming pool?

No, this Doling house does not have a swimming pool. Check the Facility Overview section for details about the pool and other available facilities.

How much does it cost per night to stay in Doling house?

Best-rates for the Doling house starts from $185 per night with includes TV, Fireplace/Heating, Entertainment, Kitchen, Air Conditioner, Parking, Sports/Activities, Balcony/Terrace, Security/Safety, Internet, Laundry, Guest Services, Child Friendly, Bedding/Linens, Wellness Facilities with all other facilities. matches every traveler with their perfect accommodation, whether you are traveling with a group, friends, family, or pets.

Is Doling house a family-friendly place to stay?

Based on the information we have received from the owner or our partner, this is considered to be a family-friendly property. Families have rated this house Good or guests have recommended them suitable for families. As reported by the owner or manager, the house has specified that children are welcome. Please see details about suitability for your family or inquire with the property to learn more.

Is the Doling house wheelchair accessible or offer services for disabled guests?

Based on the information received from our partner, the Doling house has not specified they are wheelchair accessible. Likewise, there is not an elevator specified as being available at the property. Specific accessibility details may be addressed in the property details section of this page.

What is the minimum night stay policy for the Doling house?

Based on the information reported by the owner or manager, the Doling house indicates 1 day stay policy at this house. Guests are cautioned that the minimum stay policy may differ based on seasonality or availability and may be at the discretion of the owner or manager.

What cancellation policy is in place for Doling house?

Guests are cautioned that the cancellation policy may differ based on seasonality, availability, or current travel restrictions. Guests should also be aware that this policy may be subject to change and should be confirmed prior to booking. More details may be available on this page in the property description. However, early check-in or late check-out can sometimes be negotiated between the guest and the owner or the manager of this property.

Check House Availability
Nightly rates from:
USD185
You will be redirected to  
Hot Deal - It has been viewed 196 times today
Not the right fit? Check out our other properties in Doling
The Cherry St House near Missouri State University From US $523
         

|
10.0 (18 Reviews)
House
  • Air Conditioner
  • Parking
  • Pet Friendly
Walnut Street Inn From US $159
         

|
9.4 (212 Reviews)
Bed & Breakfast
  • Air Conditioner
  • Parking
  • Designated Smoking Area
SMART Home close to downtown, MSU, and more From US $426
         

|
10.0 (1 Review)
House
  • Air Conditioner
  • View
  • Security/Safety
White Guesthouse with a Pool From US $233
         

10.0 (74 Reviews)
House
  • Air Conditioner
  • Parking
  • Pet Friendly
Broken Clock From US $185
         

|
9.9 (10 Reviews)
Apartment
  • Air Conditioner
  • Parking
  • Accessibility
The Cherry St House Springfield MO From US $406
         

10.0 (27 Reviews)
House
  • Air Conditioner
  • Parking
  • Pet Friendly
The Icon From US $153
         

|
9.8 (26 Reviews)
Apartment
  • Air Conditioner
  • Parking
  • Accessibility
Lg Historic. 2 bulk MSU. Hammond. OTC. Downtown close From US $392
         

10.0 (14 Reviews)
House
  • Air Conditioner
  • Parking
  • Designated Smoking Area
Webster, N. Hospital & Downtown From US $123
         

10.0 (11 Reviews)
Apartment
  • Air Conditioner
  • Parking
  • TV
Cozy house close to Ozark Fairgrounds From US $150
         

10.0 (7 Reviews)
House
  • Air Conditioner
  • Parking
  • TV
Lovely & Spacious Downtown 2 Bedroom From US $154
         

10.0 (4 Reviews)
House
  • Air Conditioner
  • Parking
  • Pet Friendly
Cozy upstairs two-bedroom apartment! From US $128
         

10.0 (3 Reviews)
House
  • Air Conditioner
  • Parking
  • TV
Bright & Beautiful Turn-of-the-Century Modern Home From US $239
         

10.0 (2 Reviews)
House
  • Air Conditioner
  • Pet Friendly
  • Security/Safety
Sleepover | Extraordinary 2BD/1BA Condo - SGF From US $251
         

10.0 (1 Review)
Apartment
  • Air Conditioner
  • Parking
  • TV
Sleepover | Stylish 2BD/1BA Condo - Downtown SGF From US $179
         

10.0 (1 Review)
Apartment
  • Air Conditioner
  • Parking
  • TV
Renovated 100+ year old Benton Ave. Bungalow From US $89
         

10.0 (1 Review)
House
  • Air Conditioner
  • Security/Safety
  • Child Friendly