The Roost Group - 29 Guests - Two Luxury Barns | House in Gravesend

New |   Pet Friendly   12 Bedrooms  8 Bathrooms  30 Guests
Gravesend House | The Roost Group - 29 Guests - Two Luxury Barns

12 Bedroom House in Gravesend

Summary:
Located just a 5 minute drive from Gravesend town centre, this listing combines two luxurious barns (Meadow Lodge and the Coach House). The small village, in which the barns are located, feels miles away from any town, whilst still having close transport links to major towns including London. Up to 29 guests can enjoy the vast living space whist being able to wind down in the new log burning hot tub in each property as well as The Coach House boasting a log burning fire. Ideal for large family/friends getaways with the properties being next to each other.

CCTV monitors the front entrance, parking area and the back garden (including the hot tub).

The Roost Group - 29 Guests - Two Luxury Barns is located in Gravesend. The Roost Group - 29 Guests - Two Luxury Barns provides accommodation, featuring Air Conditioner, Spa, Fireplace/Heating, among other amenities. This House features Air Conditioner, Spa, Fireplace/Heating, to make your stay a comfortable one.

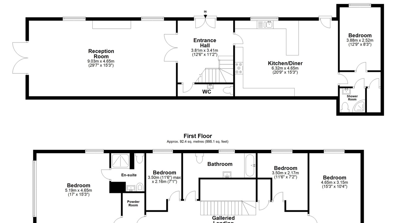
The Roost Group - 29 Guests - Two Luxury Barns has 12 Bedrooms , 8 Bathrooms, and max occupancy of 30 people. The minimum rental for this property is 1 nights, but this can change depending on the season you plan on staying. Previous guests have given good rated it, and VRBO labeled it a top-rated House because of the excellent services rendered by the owner or manager of this House, and has consistently provided great experiences for their guests. Most families or guests that use it recommend it to their friends and some of them are repeat guests. House has a friendly neighborhood, and the Gravesend has interesting places to visit. If you want to learn more about the House in Gravesend, such as places to visit and things to do nearby, you can check below to learn more.

Show more
OneKey Logos

This Property is OneKey Eligible

Earn OneKeyCash for every dollar spent on eligible vacation rentals, villas, cottages, cabins, and more when you book on Vrbo.

JOIN TODAY

Amenities

Air Conditioner
Parking
Pet Friendly
TV
Security/Safety
Wellness Facilities
Spa
Fireplace/Heating
Child Friendly
Hot Tub
Internet
Kitchen
Laundry

Facility Overview

Air Conditioner
  • Heating
  • Air conditioning
Bathrooms
  • Shower
  • Hair dryer
  • 7+ bathrooms
Bedroom
  • 10 bedrooms
  • Bed sheets provided
  • Sofa bed
  • Fireplace
Kitchen
  • Oven
  • Dishwasher
  • Microwave
  • Coffee/tea maker
  • Cookware/dishes/utensils
  • Refrigerator
Laundry
  • Washing machine
Parking
  • Onsite parking
Pet Friendly
  • Pet friendly
Accessibility
  • Smoke-free property
Entertainment
  • TV with cable/satellite service
General
  • Unit size: 4435 sq ft (412 sq m)
  • English
  • Office
Guest Services
  • Travel crib
  • Highchair
  • Iron/ironing board
Internet
  • WiFi available
Security/Safety
  • Smoke detector installed (host has indicated there is a smoke detector on the property)
  • Fire extinguisher
  • Carbon monoxide detector installed (host has indicated there is a carbon monoxide detector on the property)
  • First aid kit
Spa
  • Spa tub

Policies

Check-in
Check-in time starts at 4:00 pm minimum check-in age: 18
Check-out
Check-out before 10:00 am
Child Policy
Children are welcome.
Event Policy
No events allowed
Pet Policy
Note from host: charge may apply pets allowed service animals are welcome, and are exempt from fees
Smoking Policy
Smoking is not permitted

Extra-person charges may apply and vary depending on property policy government-issued photo identification and a credit card, debit card, or cash deposit may be required at check-in for incidental charges host has indicated there is a carbon monoxide detector on the property host has indicated there is a smoke detector on the property onsite parties or group events are strictly prohibited safety features at this property include a fire extinguisher and a first aid kit special requests are subject to availability upon check-in and may incur additional charges; special requests cannot be guaranteed this property accepts cash this property is managed through our partner, vrbo. you will receive an email from vrbo with a link to a vrbo account, where you can change or cancel your reservation

FAQ's

Is this Gravesend house pet-friendly for guests?

Yes, pets are allowed at this property. Check the guest reviews to learn what guests had to share.

Does the Gravesend house have a swimming pool?

No, this Gravesend house does not have a swimming pool. Check the Facility Overview section for details about the pool and other available facilities.

How much does it cost per night to stay in Gravesend house?

Best-rates for the Gravesend house starts from $1,107 per night with includes Hot Tub, Internet, Kitchen, Air Conditioner, Spa, Fireplace/Heating, Child Friendly, Wellness Facilities, Laundry, Parking, Pet Friendly, TV, Security/Safety with all other facilities. matches every traveler with their perfect accommodation, whether you are traveling with a group, friends, family, or pets.

Is Gravesend house a family-friendly place to stay?

Based on the information we have received from the owner or our partner, this is considered to be a family-friendly property. Families have rated this house Good or guests have recommended them suitable for families. As reported by the owner or manager, the house has specified that children are welcome. Please see details about suitability for your family or inquire with the property to learn more.

Is the Gravesend house wheelchair accessible or offer services for disabled guests?

Based on the information received from our partner, the Gravesend house has not specified they are wheelchair accessible. Likewise, there is not an elevator specified as being available at the property. Specific accessibility details may be addressed in the property details section of this page.

What is the minimum night stay policy for the Gravesend house?

Based on the information reported by the owner or manager, the Gravesend house indicates 1 day stay policy at this house. Guests are cautioned that the minimum stay policy may differ based on seasonality or availability and may be at the discretion of the owner or manager.

What cancellation policy is in place for Gravesend house?

Guests are cautioned that the cancellation policy may differ based on seasonality, availability, or current travel restrictions. Guests should also be aware that this policy may be subject to change and should be confirmed prior to booking. More details may be available on this page in the property description. However, early check-in or late check-out can sometimes be negotiated between the guest and the owner or the manager of this property.

Check House Availability
Nightly rates from:
USD1,107
You will be redirected to  
Hot Deal - It has been viewed 30 times today
Not the right fit? Check out our other properties in Gravesend
Modern 8-Bed Home: Parking, Wi-Fi, 5 mins to Town From US $541
         

TiSi Choice From US $83
         

9.3 (15 Reviews)
Bed & Breakfast
  • Designated Smoking Area
  • Balcony/Terrace
  • Child Friendly
Shamrock Guest House From US $101
         

7.4 (47 Reviews)
House
  • TV
  • Security/Safety
  • Bedding/Linens
Exquisite Riverside Living in a Stunning Flat From US $434
         

New
Apartment
  • Parking
  • Pet Friendly
  • Designated Smoking Area
Chic House With Parking And Private Garden From US $244
         

|
10.0 (3 Reviews)
House
  • Parking
  • Security/Safety
  • Fireplace/Heating
Family Friendly Flat in Gravesend From US $298
         

New
House
  • Parking
  • Balcony/Terrace
  • Security/Safety
Chalky stays From US $250
         

|
10.0 (2 Reviews)
House
  • Parking
  • View
  • Balcony/Terrace
Spacious 4 Bed Semi-Detached Family Home with Parking From US $297
         

New
House
  • Pet Friendly
  • Security/Safety
  • Bedding/Linens
Flourish House From US $239
         

|
10.0 (2 Reviews)
Apartment
  • Parking
  • View
  • Security/Safety
Countryside Escape in Beautiful Cosy Cottage From US $261
         

New
Cottage
  • Security/Safety
  • Bedding/Linens
  • Wellness Facilities
Sunrise Haven in Kent 2 bed Apartment Sleeps 7 From US $259
         

Luxuriously Cosy 1 Bed Flat in Gravesend From US $224
         

New
Apartment
  • TV
  • Wheelchair Accessible
  • Accessibility
Homely and Lush 1 Bed Apartment at Gravesend From US $193
         

New
Apartment
  • TV
  • Security/Safety
  • Wellness Facilities
Newly refurbished three bedroom house with two parking spaces . From US $191
         

Stylish 2BR Apartment at Trinity Point, Gravesend From US $187
         

2BR Apt Workspace & Play at TrinityPoint Gravesend From US $184
         

New
Apartment
  • TV
  • Wheelchair Accessible
  • Accessibility
The Roost Group - 1 Bedroom - Ground From US $177
         

Stylish 2 Bed House with free parking From US $176
         

New
House
  • Parking
  • Security/Safety
  • Bedding/Linens