Historic Old Town Key West Rental Compound - 11 Beds, 4 Sleeper Sofas, 20 Guests | House in Key West

10.0 (12 Reviews) |   11 Bedrooms  5 Bathrooms  20 Guests
Old Town House | Historic Old Town Key West Rental Compound - 11 Beds, 4 Sleeper Sofas, 20 Guests

11 Bedroom House in Old Town, Key West

This private four (4) house compound accommodates (20) guests and is has a private 10′ x 25′ heated pool including a 5’ x 10’ heated Jacuzzi. In addition, there is a private 8′ x 10′ heated Jacuzzi, Starlink high speed wi-fi network, and CCTV in the common elements (garden (2), pools (2), and property perimeters (3). There are brick walkways, and a 10′ x 40′ sun deck, including a stainless steel propane barbecue, chaise lounges for sunbathing and relaxing; and tables and chairs for dining. The design of the property lends itself perfectly for large gatherings with friends and family. This is a very unique Key West property for guests looking for a private,, authentic Key West experience.
1. MAIN HOUSE
Overview
The Main House is a two (2) story 100+ year old, recently completely renovated “Conch” house. The house has an open downstairs floor plan, and four (4) private bedrooms upstairs. There is a downstairs wraparound porch, and a complimenting upstairs wrap around balcony, both of which overlook the pool, sundeck and Thomas Street. All window, door and floor trim is turn of the century style, and all windows are 6 / 6 double-hung sash.
The house has a Starlink high speed wi-fi network, streaming internet TV, and four (4) SMART HDTVs ((2) 40" Samsung SMART HDTVs, (1) 40" Sony SMART HDTV, and (1) 32" Samsung SMART HDTV). The house has five (5) tons of central air conditioning, and six (6) 52″ Hunter ceiling fans; there is a full size Whirlpool washer and dryer located at the rear of the house. There is a propane barbecue located on the pool deck.
The house can comfortably accommodate a maximum of eight (8) guests.
All linens and towels are furnished.
There are two (2) off-street parking spaces on the property.
First Floor
The kitchen, dining room, living room are located on the first floor. Located off the living room is a half bathroom, which has a pedestal sink. The downstairs floor is a Golden Oak Pergo, and the downstairs ceiling is 9’ high.
Kitchen
The contemporary galley kitchen is new with maple cabinets, Corian countertops, and a double compartment, integrated Corian sink. Kitchen equipment includes a GE range, GE microwave, GE dishwasher, garbage disposal, Samsung side-by-side refrigerator with icemaker and serve through ice and water dispenser, coffee maker, toaster, dishes, flatware, glasses (service for 8), pots, pans, and all basic cooking utensils. There is a set of two (2) French doors providing access from the kitchen to side porch, pool, and sundeck.
Dining Room
The dining room has a wood Parson's dining room table with seating for eight (8). There is a ceiling fan in the dining room.
Living Room
The living room has a sectional sofa with a queen sleeper and a lounge seat, a reading chair, an entertainment center, and a 40" Samsung SMART HDTV. The living room has recessed lighting, and a 52" Hunter ceiling fan.
Second Floor
The second floor has four (4) private bedrooms – (2) queen beds and two (2) full beds. Each bedroom has a ceiling fan, and there is a 40" Samsung SMART HDTV in one bedroom, a 40" Sony SMART HDTV in another bedroom, and a 32" Samsung SMART HDTV in another bedroom. One bedroom provides access to the 275 square foot wrap around balcony, which overlooks the pool and sundeck, and Thomas Street. The second floor is carpeted, and there is a new full bathroom located on the second floor.
2. TURTLE HOUSE
Overview
The Turtle House is a 100+ year old recently completely renovated “Conch” house. The house can be described as having “an open, crisp, private space”. The house has two (2) gabled ceilings, which creates a contemporary, spacious living environment. The downstairs floor is Golden Oak Pergo. All window, door, and floor trim is turn of the century style, and all windows are 6/6 double-hung sash. All linens and towels are furnished.
The house has a Starlink highspeed Wi-Fi network, a 43" Samsung SMART HDTV, and two (2) 26" Samsung 26″ SMART HDTVs. The house has central air conditioning, a ceiling fan, and access to a stacked washer and dryer. There is a stainless steel propane barbecue located on the pool deck.
The house can comfortably accommodate a maximum of five (5) guests – who are comfortable sharing an open living environment.
First Floor
The kitchen, dining, living, and bathroom are located on the first floor. An architectural beam containing halogen lighting extends the entire length of the house. The bathroom, located off the living room, is completely new and has recessed LED lighting, a full shower, and sink. There are two (2) sets of French doors providing access to the rear courtyard where the 8’x10′ heated Jacuzzi is located.
Kitchen
The contemporary galley kitchen is new with maple cabinets, black Zimbabwe granite countertops, stainless steel single compartment sink, and the ceiling has recessed LED lighting. Kitchen equipment includes an under the counter GE refrigerator, an under the counter Sub-Zero freezer with icemaker, a stainless steel electric range, garbage disposal, Quasar microwave, and Braun coffee maker, Krupps toaster, dishes, flatware, glasses (service for 6), pots, pans, and basic cooking utensils.
Dining Room
The dining room has a wood Parson's dining room table with seating for six (6), and a maple with black Zimbabwe granite service credenza – complete with wine rack.
Living Room
The living room has one (1) queen sleeper sofa, a queen bed, a relaxing chair, a 43" Samsung SMART HDTV, and an Onkyo receiver.
Master Loft Sleeping Area
A staircase is used to access the master loft sleeping area. The loft has a queen size bed and a 26" Samsung SMART HDTV.
Guest Loft Sleeping Area
A staircase is used to access the guest loft sleeping area. The loft has a full size bed and a 26" Samsung SMART HDTV.
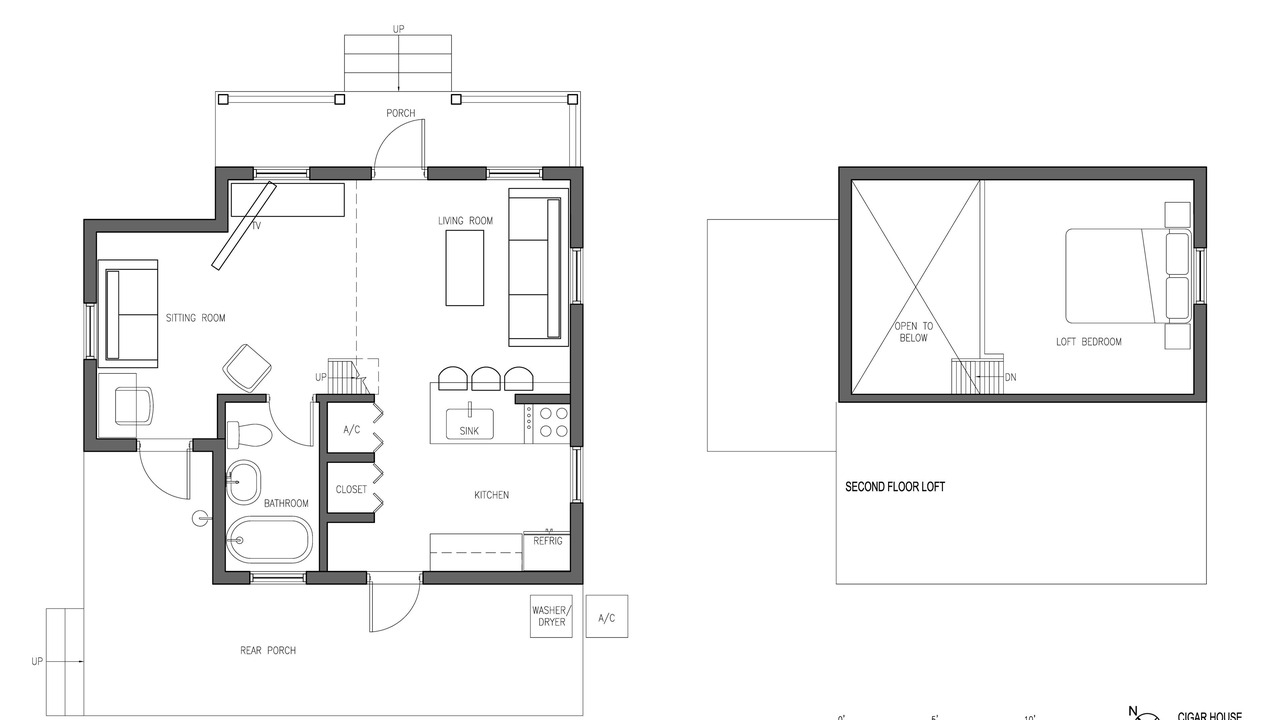
3. CIGAR HOUSE
Overview
The Cigar House is a 100+ year old “Cigar maker’s house”. The recently completely renovated house is charming, spacious, secluded and private. The cottage has a raised vaulted wood ceiling, creating a rustic, Caribbean ambiance. The downstairs floor is the original Dade County Pine. All window, door, and floor trim is turn of the century style, and all windows are 6/6 double-hung sash. All linens and towels are furnished.
The house has a Starlink high speed wi-fi network, a 32" Sony SMART HDTV, and a 26" Sony SMART HDTV. The house has central air conditioning, a ceiling fan, and a stacked LP washer and dryer. There is a stainless steel propane barbecue located on the pool deck.
The cottage can comfortably accommodate a maximum of four (4) guests – who are comfortable sharing an open social living environment.
First Floor
The kitchen, living, dining, sitting, and bathroom are located on the first floor. The living room has a queen sleeper sofa/daybed, a 32" Sony SMART HDTV. The bathroom, located off the living room, has been recently completely renovated and has a vaulted ceiling and full sized marble walk-in shower.
Kitchen
The kitchen is new and contemporary with mahogany cabinets, white Corian countertops, and integrated Corian sink, and serve thru access to the dining room. The ceiling is vaulted with architectural beams and LED lighting. The kitchen has a pantry, refrigerator, electric range, garbage disposal, microwave, and Braun coffee maker, Krupps toaster, dishes, flatware, glasses (service for 6), pots, pans, and all the basic cooking utensils. There is a French door providing access to the rear deck where the washer and dryer are located.
Loft Sleeping Area
A ladder is used to access the loft sleeping area. The loft has a full size bed, and a 26" Sony SMART HDTV.
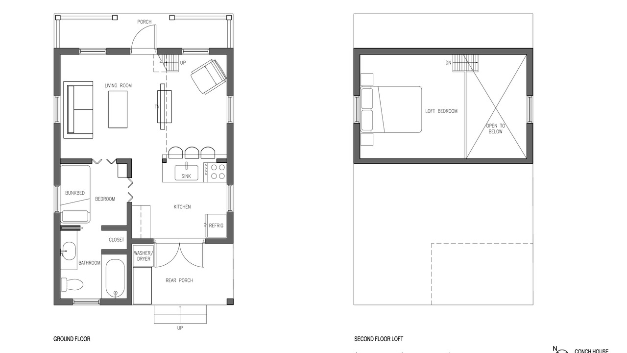
4. CONCH HOUSE
Overview
The Conch House is a 100+ year old “Cigarmaker’s house. The house is recently renovated, charming, spacious, secluded and private. The raised vaulted ceiling creates an open living environment. The downstairs floor is the original Dade County Pine. All window, door, and floor trim is turn of the century style, and all windows are 6/6 double hung sash. All linens and towels are furnished.
The house has a secured Starlink wi-fi network, a 32" Sony SMART HDTV, and a 26" Samsung SMART HDTV. The house has central air conditioning, a ceiling fan, and a stacked LP washer and dryer. There is a stainless steel propane barbecue located on the pool deck.
The house can comfortably accommodate a maximum of five (5) guests – who are comfortable sharing an open sociable living environment.
First Floor
The kitchen, living/dining room, a small bedroom, and a full bathroom. There is a queen sleeper sofa/day bed and a 32" Sony SMART HDTV in the living room. There is a full bed in the small bedroom located between the kitchen and the living room. The bathroom, located off the small bedroom, has been recently completely renovated – it has a vaulted ceiling, recessed lighting, oak cabinets, and black granite vanity top.
Kitchen
The kitchen has serve thru access to the dining/living room. The kitchen ceiling is vaulted with recessed LED lighting. There is a stainless steel gas range, a stainless steel refrigerator, microwave, Braun coffee maker, garbage disposal, Krupps toaster, pots & pans, all basic cooking utensils; and dishes, flatware, glasses (service for 6). There are (2) French doors providing access to the rear deck where the washer and dryer are located.
Loft Sleeping Area
A ship's ladder is used to access the loft sleeping area. The loft has a full size bed, and a Samsung 26″ HDTV.
CHICKENS & ROOSTERS
The City of Key West protects chickens and roosters, and considers them as part of the history and charm of Key West. As a result, Key West and many of the islands throughout the Florida Keys have free-range chickens and roosters. You will definitely see and hear chickens and roosters during your stay in Key West. Some visitors to Key West love them, and some visitors hate them - personally, I enjoy them best roasted, with plantains, and black beans and rice!

Historic Old Town Key West Rental Compound - 11 Beds, 4 Sleeper Sofas, 20 Guests is located in Old Town. Historic Old Town Key West Rental Compound - 11 Beds, 4 Sleeper Sofas, 20 Guests provides accommodation, featuring Parking, View, Balcony/Terrace, among other amenities. This House features Parking, View, Balcony/Terrace, to make your stay a comfortable one.

Historic Old Town Key West Rental Compound - 11 Beds, 4 Sleeper Sofas, 20 Guests has 11 Bedrooms , 5 Bathrooms, and max occupancy of 20 people. The minimum rental for this property is 1 nights, but this can change depending on the season you plan on staying. Previous guests have given good rated it, and VRBO labeled it a top-rated House because of the excellent services rendered by the owner or manager of this House, and has consistently provided great experiences for their guests. Most families or guests that use it recommend it to their friends and some of them are repeat guests. House has a friendly neighborhood, and the Old Town has interesting places to visit. If you want to learn more about the House in Old Town, such as places to visit and things to do nearby, you can check below to learn more.

Show more
OneKey Logos

This Property is OneKey Eligible

Earn OneKeyCash for every dollar spent on eligible vacation rentals, villas, cottages, cabins, and more when you book on Vrbo.

JOIN TODAY

Amenities

Air Conditioner
Parking
Pool
TV
View
Ocean View
Balcony/Terrace
Oceanfront
Security/Safety
Sports/Activities
Bedding/Linens
Wellness Facilities
Fireplace/Heating
Entertainment
Barbecue/Outdoor Cooking
Child Friendly
Hot Tub
Internet
Kitchen
Laundry

Facility Overview

Air Conditioner
  • Heating
  • Air conditioning
Bathrooms
  • Shampoo
  • Bathtub or shower
  • Hair dryer
  • Towels provided
  • Bidet
  • 5+ bathrooms
  • Toilet paper
  • Soap
Bedroom
  • Bed sheets provided
  • 11 bedrooms
  • Dining table
  • Dining room
  • Living room
Kitchen
  • Ice maker
  • Oven
  • Microwave
  • Spices
  • Toaster
  • Refrigerator
  • Dishwasher
  • Stovetop
  • Paper towels
Laundry
  • Washing machine and dryer
  • Laundry facilities
Ocean view
  • Beach towels
Parking
  • Onsite parking
  • Electric car charging station on site
Pet Friendly
  • No pets allowed
Accessibility
  • Smoke-free property
Activities
  • Fitness facilities nearby
  • Marina nearby
  • Golf nearby
  • Bicycle on site
  • Swimming nearby
  • Cycling nearby
  • Scuba diving nearby
  • Water skiing nearby
  • Ecotours nearby
  • Water tubing nearby
  • Parasailing nearby
Entertainment
  • Smart TV with cable/satellite service
  • Books
  • Stereo
  • Games
General
  • Energy-saving switches
  • At least 80% lighting from LEDs
  • Unit size: 5000 sq ft (465 sq m)
  • Water-efficient toilets only
  • Recycling
  • Water-efficient showers only
  • English
  • Near a health or beauty spa
  • Near the sea
  • Near a hospital
  • In a village
Guest Services
  • Housekeeping (on request)
  • Change of towels (on request)
  • Iron/ironing board
Internet
  • Free WiFi
Outdoors
  • Barbecue grill
  • Garden
  • Outdoor furniture
  • Balcony
Security/Safety
  • Fire extinguisher
  • Smoke detector installed (host has indicated there is a smoke detector on the property)
  • Carbon monoxide detector installed (host has indicated there is a carbon monoxide detector on the property)
  • Deadbolt lock
Spa
  • Shared/communal pool
  • Outdoor pool
  • Heated pool
  • Hot tub

Policies

Check-in
Check-in time starts at 4:00 pm contactless check-in available minimum check-in age: 21
Check-out
Check-out before 10:00 am contactless check-out available
Child Policy
Children are welcome.
Event Policy
No events allowed
Pet Policy
Pets not allowed
Smoking Policy
Smoking is not permitted

Extra-person charges may apply and vary depending on property policy government-issued photo identification and a credit card, debit card, or cash deposit may be required at check-in for incidental charges host has indicated there is a carbon monoxide detector on the property host has indicated there is a smoke detector on the property onsite parties or group events are strictly prohibited safety features at this property include a fire extinguisher and a deadbolt lock special requests are subject to availability upon check-in and may incur additional charges; special requests cannot be guaranteed this property is managed through our partner, vrbo. you will receive an email from vrbo with a link to a vrbo account, where you can change or cancel your reservation

Reviews

Kelly R.
Jul 28, 2025 05:37:09 AM
Review Score:   10
Summary: Was a wonderful place for a large family reunion and celebration of all that is Key West!Able to gather and remanence and have separate time! Close to Duval street and walking distance to almost everything!We had a wonderful time.
See All Reviews

FAQ's

Is this Old Town house pet-friendly for guests?

No, pets are not allowed at this property. Check the guest reviews to learn what guests had to share.

Does the Old Town house have a swimming pool?

Yes, this Old Town house has a swimming pool. Check the Facility Overview section for details about the pool and other available facilities.

How much does it cost per night to stay in Old Town house?

Best-rates for the Old Town house starts from $5,774 per night with includes Pool, TV, Fireplace/Heating, Kitchen, Air Conditioner, Oceanfront, Child Friendly, Hot Tub, Laundry, Ocean View, Bedding/Linens, Wellness Facilities, Internet, Security/Safety, View, Balcony/Terrace, Sports/Activities, Entertainment, Barbecue/Outdoor Cooking, Parking with all other facilities. matches every traveler with their perfect accommodation, whether you are traveling with a group, friends, family, or pets.

Is Old Town house a family-friendly place to stay?

Based on the information we have received from the owner or our partner, this is considered to be a family-friendly property. Families have rated this house Good or guests have recommended them suitable for families. As reported by the owner or manager, the house has specified that children are welcome. Please see details about suitability for your family or inquire with the property to learn more.

Is the Old Town house wheelchair accessible or offer services for disabled guests?

Based on the information received from our partner, the Old Town house has not specified they are wheelchair accessible. Likewise, there is not an elevator specified as being available at the property. Specific accessibility details may be addressed in the property details section of this page.

What is the minimum night stay policy for the Old Town house?

Based on the information reported by the owner or manager, the Old Town house indicates 1 day stay policy at this house. Guests are cautioned that the minimum stay policy may differ based on seasonality or availability and may be at the discretion of the owner or manager.

What cancellation policy is in place for Old Town house?

Guests are cautioned that the cancellation policy may differ based on seasonality, availability, or current travel restrictions. Guests should also be aware that this policy may be subject to change and should be confirmed prior to booking. More details may be available on this page in the property description. However, early check-in or late check-out can sometimes be negotiated between the guest and the owner or the manager of this property.

Check House Availability
Nightly rates from:
USD5,774
You will be redirected to  
Hot Deal - It has been viewed 190 times today
Not the right fit? Check out our other properties in Old Town
Old Town Garden Villas From US $258
         

|
9.5 (19 Reviews)
House
  • Air Conditioner
  • Pool
  • View
Casa Tranquility by Brightwild From US $277
         

|
10.0 (1 Review)
House
  • Air Conditioner
  • Parking
  • Internet
Sunshine Corner From US $244
         

|
New
House
  • Air Conditioner
  • Parking
  • Balcony/Terrace
Green Mermaid From US $238
         

|
New
House
  • Air Conditioner
  • Pet Friendly
  • Child Friendly
PET FRIENDLY! Completely REMODELED! 3 Bedroom 3 bathroom home. Sleeps 8 From US $674
         

Blue Heaven at The Truman Annex in Key West From US $393
         

9.0 (51 Reviews)
Condo
  • Air Conditioner
  • Parking
  • Pool